【时尚芭莎网讯】刘晶
原汁原味
宁静素雅
体味最初感受
......ʕ •ᴥ• ʔ......

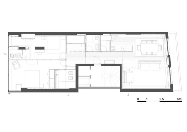
该项目是基于改造一个95平方米的海滨公寓,主要作为季节性海边度假使用



现有的空间包含一个宽敞的客厅,涵盖厨房区、两个套房、一个容纳双层床的壁龛、公共浴室和储藏室



这里的海景是得天独厚的,再次选择的橡木材料在建立空间特性上起到了决定性作用




上图为改造前公寓样貌

Photo:José Cam
END

【时尚芭莎网讯】刘晶 原汁原味 宁静素雅 体味最初感受 ......ʕ •ᴥ• ʔ...... 该项目是基于改造一个95平方米的海滨公寓,主要作为季节性海边度假使用...